Die DOBNER GUTWERT GmbH, ein Unternehmen der Gruppe
BRF FRIEDRICHSHAIN GmbH, ist Hersteller des Aluminium-Fassadensystems EURACON FS-300.
Montageanleitung Fassadenpaneele EURACON FS-300
Montageanleitung Fassadenpaneele EURACON FS-300
Das EURACON Fassadenelement FS-300 ist für horizontale, als auch für vertikale Montage geeignet. Die Befestigung der Fassadenpaneele erfolgt mit handelsüblichen Fassaden-Bohrschrauben oder Blindnieten auf eine Metall- oder Holz-Tragkonstruktion. Durch die stabile Profilierung der Fassadenelemente mit einer Höhe von 12,5 mm sind schlagregensichere und sturmwindtaugliche Wandbekleidungen gewährleistet.
Die Wärmedämmung der Fassade wird vor der Tragprofilmontage in der gewünschten Stärke montiert. Der erforderliche Platz für die Hinterlüftung der Aluminiumfassade ist durch die Elementhöhe von 12,5 mm gesichert.
Alle am Bau erforderlichen Anschlüsse sind möglich, wie Aussen- und Innenecken, Sockelabschlüsse, Fenstereinfassungen, Stockwerkstrennungen etc.
Material: Aluminium 0,8 mm, bandbeschichtet (Coilcoating-Verfahren)
Querschnitt EURACON FS-300 Aluminium Fassadenelement:
Außenecke /
Horizontal-Schnitt
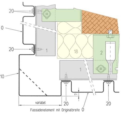
0 EURACON FS-300
Fassadenelement
1 Tragprofile Aluminium
2 Tragkonsole: Wandwinkel
10 Abkantprofil beschichtet
12 Abkantprofil 1,5 mm roh
18 Wärmedämmung: Mineralwolle
20 Bohrschraube
Aussenecke mit Fuge / Horizontal-Schnitt
0 EURACON FS-300
Fassadenelement
1 Tragprofile Aluminium
2 Tragkonsole: Wandwinkel
10 Abkantprofil beschichtet
18 Wärmedämmung: Mineralwolle
20 Bohrschraube
Innenecke
Beide Elemente geschnitten
0 EURACON FS-300
Fassadenelement
1 Tragprofile Aluminium
2 Tragkonsole: Wandwinkel
10 Abkantprofil beschichtet
12 Abkantprofil Alu 15 mm roh
20 Bohrschraube
Wandanschluss
Element geschnitten
Horizontal-Schnitt
0 EURACON FS-300
Fassadenelement
1 Tragprofile Aluminium
2 Tragkonsole: Wandwinkel
10 Abkantprofil beschichtet
12 Abkantprofil 1,5 mm roh
18 Wärmedämmung: Mineralwolle
20 Bohrschraube
Wandanschluss mit Fuge
Element geschnitten
Horizontal-Schnitte
Element mit Originalbreite
Sockel-Abschluss
Vertikal-Schnitt
0 EURACON FS-300
Fassadenelement
1 Tragprofile Aluminium
2 Tragkonsole: Wandwinkel
13 Abkantprofil 1,5 mm roh (objektbezogen)
14 Lochblech (objektbezogen)
18 Wärmedämmung: Mineralwolle
20 Bohrschraube
FASSADENSYSTEM EURACON FS-300 - Montage
Die Fassade muss dem Gebäude Schutz vor Witterungseinflüssen bieten. Weiterhin soll die Fassade schön und repräsentativ sein, denn schon immer werden die Außenwände eines Bauwerks zur Präsentation genutzt. Beides erreichen Sie mit dem Fassadensystem EURACON FS-300.
Die vorgehängte, hinterlüftete und wärmegedämmte Fassade besteht aus drei wichtigen Komponenten:
- die mineralische Wärmedämmung in variablen Dicken, je nach Erfordernis
- die Aluminium-Unterkonstruktion individuell angepasst auf den jeweiligen Wandaufbau und die vorhandene Windbelastung.
- den EURACON FS-300 Fassadenelementen aus 0,8 mm starkem Farbaluminium.
- Die Unterkonstruktion einschließlich der Befestigungsmethode (Statik) und die Dicke der Wärmedämmung wird von einem Ingenieurbüro berechnet.
Hinterlüftung wird der Luftaustausch genannt, der im Hohlraum zwischen der Wärmedämmung und den Aluminium-Paneelen stattfindet. Damit dies gewährleistet ist, ist in der Regel am oberen und unteren Fassadenende ein Luftspalt von mindestens 5 mm Breite erforderlich.
Durch die heutigen modernen Bearbeitungstechniken und die Vielzahl der verfügbaren Farben kann das vom Planer gewünschte Aussehen der Fassade kompromisslos realisiert werden.
Bei der Paneel-Bauweise werden die streifenförmigen, längsprofilierten Elemente jeweils in Stockwerkshöhe mit horizontalen Trennprofilen abgegrenzt. Die vertikalen Fugen und die Befestigungen entsprechen der Kassetten-Bauweise.
Abmessung der Paneele:
Paneelbreite: 320 mm
Modulbreite: 300 mm
Höhe: Standard 2800 mm (Sonderlängen sind möglich)
Höhe max.: 4000 mm
Materialstärke: 0,8 mm
Die Bekleidung der Fensteröffnungen in der Fassade bedarf der besonders sorgfältigen Planung. Besonders geeignet sind Fertigzargen aus Metall.
Zur Herstellung von objektbezogenen Spezialprofilen kann das für die Paneel-Herstellung verwendete Bandmaterial in der Breite von 342 mm als Meterware von Dobner bezogen werden. Damit haben Sie die Möglichkeit individuelle Profile durch Abkanten selbst herzustellen.
Die EURACON FS 300 Paneele sind für eine horizontale, als auch eine vertikale Montage ausgelegt. Die sichtbare Befestigung in den Fugen wird mit Bohrschrauben oder Blindnieten auf einer Aluminium-Unterkonstruktion vorgenommen. Dobner empfiehlt aus langjähriger Erfahrung immer die vertikale Verlegung auf horizontaler Unterkonstruktion.
Alle am Bau erforderlichen Anschlüsse sind möglich. Durch die sehr stabile Profilierung und der Paneel Höhe von 12,5 mm sind schlagregensichere und sturmwindtaugliche Fassadenbekleidungen gewährleistet.
Die Wärmedämmung wird vor der Tragprofilmontage in der gewünschten Stärke montiert. Der erforderliche Platz für die Hinterlüftung ist durch die Paneel Höhe von 12,5 mm in jedem Falle sicher gestellt.
Wenn ein Aluminiumpaneel 2,8 Meter lang ist und die Temperaturunterschied zwischen Sommertag und Winternacht ca. 90°K beträgt, dann kann sich dieses Aluminiumpaneel bis ca. 2,8 mm ausdehnen. Derartige Temperaturunterschiede treten ein zwischen Sommer (sonnenbestrahltes Aluminium) und Winter (Lufttemperatur in der Nacht).
Deshalb muss die Wärmeausdehnung bei der Konstruktion von Fassadenbauteilen immer berücksichtigt werden und zwar durch flexible Befestigungen - sogenannte Gleitpunkte. Fehlende Gleitpunkte können zur Deformation von Fassadenbauteilen bis hin zum Abscheren der Befestigungsmittel und damit zum Absturz von Fassadenelementen führen.
Bitte beachten Sie:
Bei Nachbestellung von Farbaluminium-Paneelen kann es bei unterschiedlichen Chargen zu leichten Farbabweichungen kommen. Dies ist darauf zurückzuführen, dass natürliche Rohstoffe wie mineralische Farbpigmente immer leicht unterschiedlich ausfallen. Diese natürlichen Nuancen sind normal und keine Fehlproduktion. Daher sind die Chargennummern auf den Lieferverpackungen stets vor dem Einbau zu vergleichen. Es wird empfohlen unterschiedliche Chargen auf unterschiedlichen Bauwerksseiten oder Bauabschnitten einzusetzen.
Gemäß der Lieferbedingungen von DOBNER GUTWERTwerden Sie als Käufer beim Erwerb von Dobner Farbaluminium Paneelen auch Eigentümer der Verpackungen. Deshalb kann Dobner diese Verpackungen nicht zurücknehmen. Die Verpackungen sind vom Endverbraucher (Montagefirma) fachgerecht zu entsorgen.
Zuschneiden:
Mit Kreissägen, Kappsägen, Bandsägen, Scheren etc. (Trennscheiben dürfen nicht verwendet werden)
Kanten:
Min. Biegeradius = 2,5 x Bandstärke mit Kunststoff-Zwischenlage auf der Farbseite
Montage:
Mit weißen Baumwoll-Handschuhen um Fingerabdrücke und Verschmutzungen zu verhindern
Reinigung:
Mit neutralen, wässrigen Reinigungsmitteln, gut nachspülen, evtl. Fachfirma einsetzen
Anschlüsse:
Bei den geforderten Funktionen und Belastungen stets nach den technischen Richtlinien und Regeln der Blechverarbeitung ausführen
Nicht zulässig:
Die Oberflächenbeschichtung der Deckenelemente darf nicht in Berührung kommen mit Lösungsmitteln, Zement, Säuren, Laugen, Silikon-Gleit- und Dichtstoffen, Schleifstaub, Bohrspänen aus Stahl etc. Der Kontakt mit Kupfer ist nicht zulässig, ebenso das Aufkleben von Schildern etc.. Die Paneele sind nicht schweissbar.
Lagerung und Transport:
Nur auf ebenen, trockenen Flächen lagern. Verpackung vor Nässe, Hitze und starker Sonneneinstrahlung schützen. Hubstapler sind nur für Längen bis 4 m geeignet.
Fixierung mit Schrauben oder Nieten:
Die Längenausdehnung des Materials berücksichtigen. Fixpunkt soweit wie möglich in die Paneel Mitte setzen. Gleitpunkte immer an den Paneelenden. Bei Bohrschrauben mit richtigem Drehmoment arbeiten (nie überdrehen). Minimaler Schrauben- bzw. Nietenkopf = Ø 15 mm.
Gleitpunkte:
Die Gleitpunkte können als Lang- oder Rundloch Ø 5 mm ausgeführt werden. Zur Herstellung der Langlöcher werden Handstanzen verwendet. Rundlöcher können mit Handstanzen oder durch Vorbohren mit einem Bohrer Ø 5 mm hergestellt werden.
Sonderbelastungen:
An die Fassadenpaneele dürfen keine zusätzlichen Lasten wie Lampen, Ausleger, Abspannungen etc. angebracht werden. Diese Lasten sind fachgerecht über die Unterkonstruktion in die Wand einzuleiten.
Stoßlasten:
Stoßlasten sind Einwirkungen von außen, die durch das Anlehnen von Gegenständen, z.B. Leitern, Fahrrädern etc. entstehen. Durch zusätzliche konstruktive Maßnahmen kann man derartige schädliche Auswirkungen vermeiden. Dobner empfiehlt die Sockel oder Erdgeschoßbereiche mit mechanisch widerstandfähigeren Materialien zu bekleiden, z,B. Naturstein oder Keramik. Auch Laminate wie Resopal oder Maxplatten sind sehr dafür gut geeignet.
Spezial-Anwendungen:
Für Dächer sind die EURACON FS 300 Paneele nicht geeignet. Übergänge von der Fassade zu Attika-Abdeckungen, stark geneigte Aufbauten etc. sind möglich, wenn der Wasserführung durch konstruktive Maßnahmen Rechnung getragen wird.
Abdichtungen:
Wegen der großen Verschmutzungsgefahr durch Silikon-Dichtungsmasse – diese keinesfalls einsetzen!
Verwenden Sie andere Produkte z.B. Acryl oder Hybrid-Polymere.
Pflege und Reinigung:
Die Fassade bleibt insbesondere an den Wetterseiten immer schön, weil der Regen im Zusammenspiel mit der gesteuerten Abkreidung die Fassade stets sauber hält. Sollte es an Stellen, die der Witterung geringer ausgesetzt sind, ausnahmsweise zu Anhaftungen von Schmutz kommen, kann dieser mittels eines Hochdruckreinigers mit geringen Druck entfernt werden. Der Zusatz von neutralen, wässrigen Reinigungsmitteln wird empfohlen, so z.B. einfaches Spülmittel.
Schnelles und problemloses Auswechseln beschädigter Paneele:
Die sichtbare Befestigung in den Fugen gestattet das schnelle und sichere Auswechseln einzelner beschädigter Paneele in wenigen Minuten.
Haben Sie noch Fragen? Wir beraten Sie sehr gerne! Bitte senden Sie uns eine E-Mail! So erreichen Sie uns:
DOBNER GUTWERT GMBH
Metalldeckenwerk
Grenzweg 7
03246 Crinitz (Brandenburg)
Germany
Telefon: +49 (0)30-421 98 130
E-Mail: mailto@dobner.eu
